INSTALLATIONS
Notre démarche en 5 étapes :
1. Analyse sur site
→ Compréhension fine des besoins opérationnels et des contraintes techniques.
2. Étude technique et dimensionnement sur-mesure
→ Conception adaptée à votre environnement et à vos exigences.
3. Fourniture du matériel
→ Équipements conformes CE et ISO, issus de fournisseurs fiables.
4. Installation sur site
→ Pose par nos techniciens habilités, en sécurité et dans les règles de l’art.
5. Mise en service accompagnée d’un contrôle externe
→ Essais et vérifications réalisés par un organisme de contrôle indépendant, partenaire ou choisi par vos soins, garantissant neutralité et déontologie.




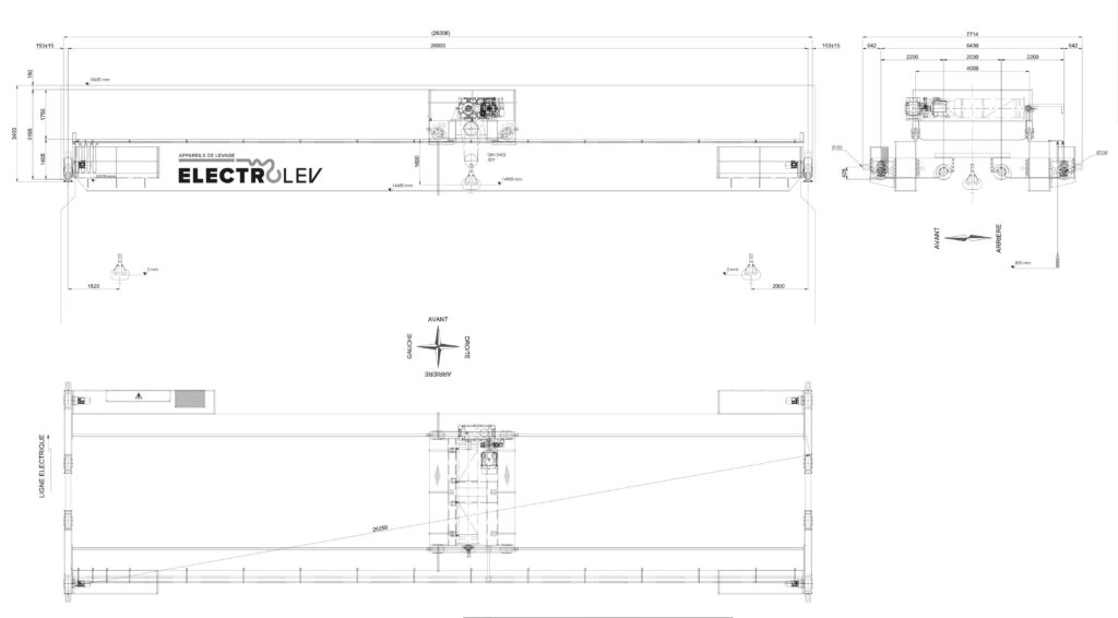
Ponts roulants
▸ Monopoutre
Idéal pour les charges moyennes (jusqu’à 10 tonnes environ).
Structure légère, économique en hauteur et en poids.
Convient aux bâtiments de faible hauteur sous toiture.
Compatible avec palans à chaîne ou à câble.
▸ Bipoutre
Conçu pour les charges lourdes et encombrantes (jusqu’à 100 tonnes et plus).
Offre une portée plus importante et une meilleure rigidité.
Permet l’ajout de passerelles ou cabines pour l’opérateur.
* Posés ou suspendus
Selon le besoin ou la configuration du bâtiment

Portiques et semi-portiques
Utilisés principalement en extérieur ou dans des zones ouvertes.
> Portique
Repose sur deux rails au sol.
> Semi-portique
Un seul rail au sol, l’autre extrémité est posée en hauteur.
Déplacements motorisés ou manuels.
* Très modulables selon les contraintes du site.
Applications : chantiers navals, préfabrication béton, zones de stockage, logistique lourde.
Potences
▸ Murales
Fixées à un mur porteur ou un poteau existant.
Bras pivotant sur 180° à 270°.
▸ Sur fût (autoportée)
Fixée au sol via un massif béton ou une platine.
Grande liberté d’implantation, notamment pour des postes isolés.
Rotation manuelle ou motorisée.
Intégration possible d’un palan à chaîne ou à câble.


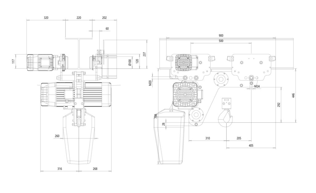
Palans
▸ Monorail, câble ou chaîne
Adaptable à toutes les configurations.
À chaîne : simple, compact, idéal pour les charges <5 tonnes.
À câble : pour charges plus lourdes, cycles intensifs, grande vitesse de levée.
▸ Électriques ou manuels
Électriques : pour usage intensif, sécurité et confort d’utilisation.
Manuels : pour des usages ponctuels ou en zones sans alimentation.
▸ Pneumatiques
Résistent aux milieux explosifs, salins, poussiéreux.
Contrôle de la vitesse très précis.
Très appréciés en milieux chimiques, nucléaires ou agroalimentaires.
Systèmes de manutention complémentaires
▸ Convoyeurs
Transfert horizontal de charges.
En version motorisée ou gravitaire.
Adaptés aux produits lourds ou palettisés.
▸ Tables élévatrices
Réglage ergonomique des hauteurs de travail.
Charge jusqu’à plusieurs tonnes.
Fixes ou mobiles, manuelles ou motorisées.
▸ Rails suspendus , profilés creux & chemins de roulement
Guidage linéaire pour palans ou systèmes de transfert.
Minimisation des efforts à l’opérateur.
Adaptés aux postes en ligne ou postes successifs.
▸ Structures porteuses
Fabrication sur mesure de portiques, consoles, ossatures.
Optimisées pour la sécurité, la résistance et l’évolution future.
Compatibles avec l’ensemble des éléments ci-dessus.

Nos garanties
> Respect des normes en vigueur (CE, ISO, FEM, EN)
> Matériel certifié et sélectionné auprès de fournisseurs reconnus
> Pose réalisée par des techniciens habilités
> Dossier technique remis à la fin de chaque installation
> Suivi possible en contrat de maintenance préventive

Prenez contact avec nous pour tous vos projets
Electrolev est votre partenaire de confiance pour tous vos besoins en appareils de levage, offrant expertise et solutions adaptées depuis 1989.
